AL-3
Elamut on võimalik ehitada suuruses 90-110 m2.
Hinnad alates 1500 €/m2
Üldosa
Projekteeritud ühepereeramu on projekteeritud tüüpsena, samas on võimalik teha teatud piirides muudatusi hoone plaanilisel ja mahulisel lahendusel arvestades tellija erisoove, ettepanekuid ja perspektiivset asukohta. Projekt 2013a.
Asendiplaaniline lahendus
Asendiplaan koostatakse igale projektdokumentatsioonile eraldi, arvestades kohaliku omavalitsuse poolt esitatud projekteerimistingimusi ja tellija soove krundi tsoneerimisel.
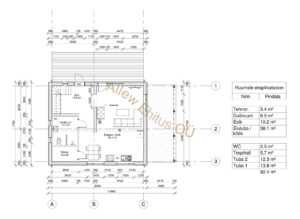
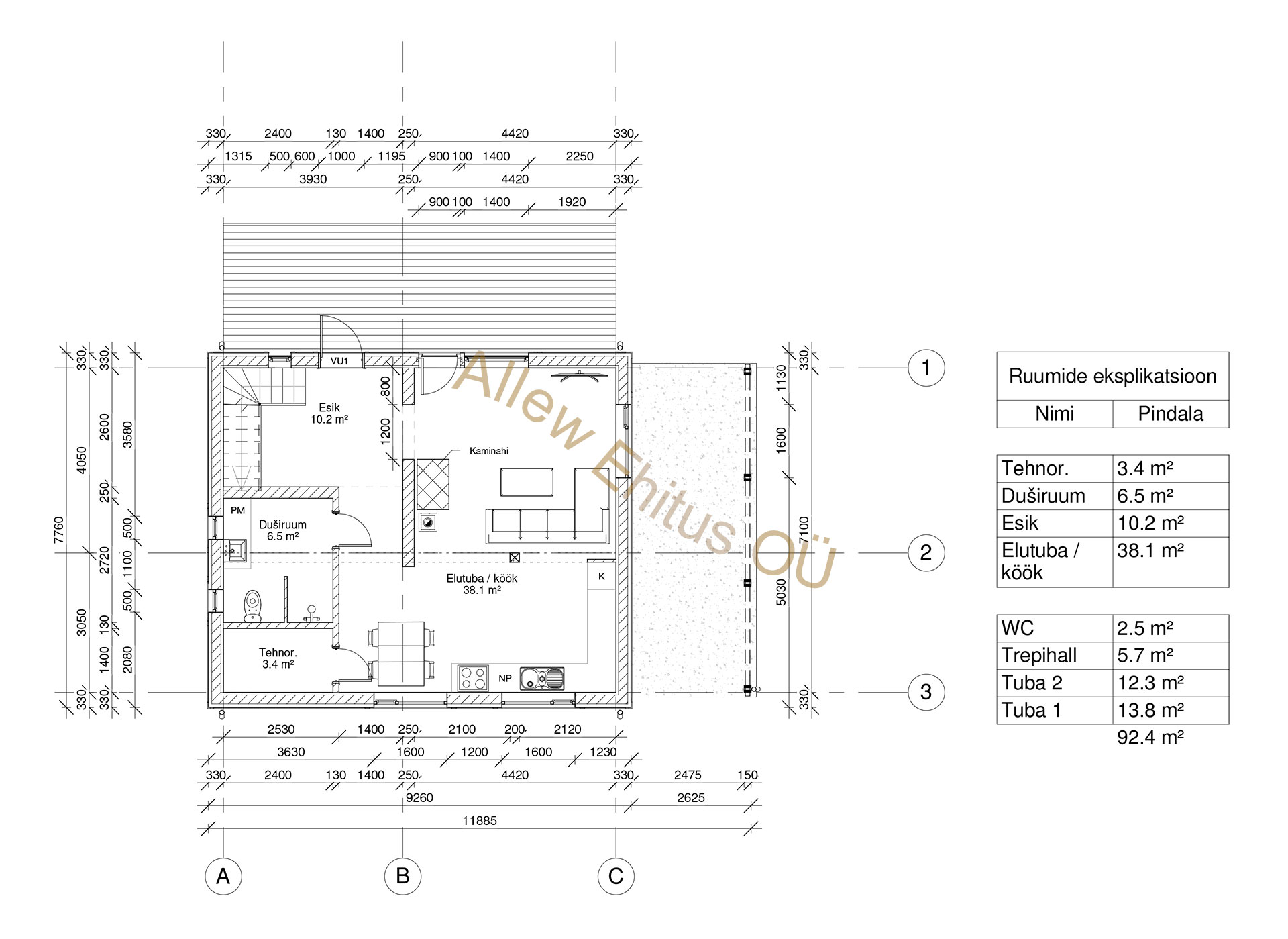
Hoone plaaniline lahendus
Hoone plaaniline lahendus hõlmab traditsiooniliselt väljakujunenud eramu põhitüüpi, kus esimesel korrusel asuvad hoonet teenindavad üldruumid: avatud elutuba, köök, vannituba ja terrass. Teisel korrusel asuvad magamistoad ja vannituba.
Konstruktiivne lahendus
Vundament on armeeritud monoliitne plaatvundament. Sokli kõrgus ca. 350mm. Põranda soojustus 200mm.
Välisseinad on alusvööle rajatud puitkonstruktsioon. Kasutatakse 45×195 c24 prussi sammuga 600 mm. Puitkarkass kaetakse väljastpoolt tuuletõkkeplaadiga Isover VKL13. Karkassi vahel kasutatakse mineraalvilla Isover KL33 paksusega 200 mm. Välisseintes soojustust kokku 250mm+13mm tuuletõke. Lae kõrgused 2500mm.
Katusekonstruktsiooniks ehk sarikateks on ogaplaat fermid . Sarikatele paigaldatakse hingav aluskate, mis kinnitatakse tuulutusrooviga. Kaldlagedel on soojustuse paksuseks 300 mm, laes 600 mm. Vahelagedesse paigaldatakse puistevill 200 mm. Vinskapid ei sisaldu hinnas, 1tk 4300.-
Katusekattena kasutatakse Klassik profiil plekki 0,5mm.
Korsten on moodulkorsten lm. 200mm.
Avatäited
Aknad on 3x selektiivklaasidega saksa tüüpi puidust aknad. Katuseaknad (1tk, 780×1180 mm) on firmalt Velux.
Uksed: Hoone uksed on ühikuhinnaga, kliendi valikul.
Siseviimistlus
Kipsitööd: kipsplaat (13 mm) paigaldatakse metallkarkassile, välisseinas 42 mm, mittekandvad vaheseinad 95- 66 mm.
Maalritööd: Seinad kaetakse Wallaton seinakattega ja värvitakse 2x, toon kokkuleppel. Laed kaetakse OSB12mm+ voodrilaud STV, toon valge peits.
Põrandakatted: paigaldatakse naturaaparkett 13mm. Maja sisetrepp, käsipuu ja trepihalli piire on männipuidust. Plaadi ja põrandakatete arvestuslik hind 17.-rm.
Välisviimistlus
Välisfassaad on täispunn lauast, horisontaallaud kombineerituna vertikaal-laudisega. (kattev Villa Akva)
Sokkel krohvitakse ja värvitakse.
Vihmavee süsteem on Pural kattega terasplekk (kandiline profiil). Vesi juhitakse maja nurkadest alla vihmaveetorudega.
Terass on immutatud puidust 28mm, massiivne käsipuu ja varikatuse postid 200x200mm.
Kommunikatsioonid
Kanalisatsioon lahendatakse PP torudega (50 ja 110 mm), mis juhitakse maja välispiirini.
Veevarustus lahendatakse Alupex torudega 16 mm. Soe vesi saadakse soojuspumbast.
Sanitaartehnika on firmalt Gustafsberg, kokkuleppel.
Elektrivarustus: kasutatakse firma Shneider toodangut. Hind ei sisalda valgusteid ega nende paigaldust. Majas on kokku 80 punkti (lülitit, pistikut, valgustit- sealhulgas 2 televisiooni pistikut).
Küttesüsteem: Baasvarjant sisaldab õhk-vesi soojuspumpa koos 1k. põrandaküttega ja 2k. radikatega. Kamin kokkuleppel. Maja küttesüsteemil võimalikud variandid.
Ventilatsioon lahendatakse vannitoas ja WC-s sundventilatsiooni teel. Teistes ruumides on akendes mikrotuulutusavad. Värskeõhu klapid, 5tk. Soovi korral soojusvahetiga ventilatsioon.
Võtmed kätte (100ruutmeetrit) hind: 150 000.-
| Soovi korral: | |
|---|---|
| 1. 2. korruse wc | 2980.- |
| 2. Soojusvahetiga ventilatsioon | 5200.- |
| 3. Lisa katuseaken | 880.- |
| 4. Auto varjualune | 4500.- |
| Projekti kooskõlastused, sisaldab ehitusluba | ca 2 kuud |
| Ehituse aeg | ca 5 kuud |
Lõplik hind selgub peale krundiga tutvumist ja kõikide detailide läbiarutamist kliendiga.
Garantii 2 aastat.
Hind sisaldab töid, materjali, hoone põhiprojekti, elektriprojekti, CAR kindlustust ja käibemaksu










